SGM-VD5C-12型户内侧装式高压交流真空断路器

SGM-VD5C-12型户内高压交流真空断路器适用于10kV三相交流50Hz电力系统,可供工矿、企业、发电厂及变电站作电气设施的控制和保护之用。
断路器符合GB 1984《高压交流断路器》、JB/T 3855《3.6~40.5kV户内高压交流真空断路器》、DL/T 403《12~40.5kV户内高压真空断路器订货技术条件》和IEC62271-100:2001《高压交流断路器》等有关标准的规定。
断路器可装入固定式开关柜,特别适用于小型化开关柜。具有寿命长、维护简单、无污染、无爆炸危险、噪音低等优点,并且适应于频繁操作等比较苛刻的工作条件。

使用场所及使用要求

 环境温度:最高温度+40℃、最低温度-15℃、日平均值不大于+35℃;

环境湿度:日平均相对湿度不大于95%,月平均相对湿度不大于90%,温度聚降时,可能凝露;

海拔高度:不高于1000m

地震烈度:不超过8

安装场所:没有火灾、爆炸危险,没有严重污秽、化学腐蚀及剧烈振动的场所;

对特殊工作条件,由制造厂与用户协商并按标准进行修正。

 型号、规格系列及其说明

 SGM-VD5C-12/-□型户内高压交流真空断路器

SGM企业代号

VD真空设计

C侧装

5设计序号

12额定电压(kV)

额定电流(A)

额定短路开断电流(kA)

 主要技术参数  

名称

单位

数据

额定电压

kV

12

额定电流

A

630、1250、1600

额定频率

Hz

50

1min工频耐受电压

kV

(极间、极对地/断口)42/48

雷电冲击耐受电压

 

(极间、极对地/断口)75/85

额定短路开断电流

kA

20、25、31.5

额定短路关合电流(峰值)

 

40、63、80

额定短时耐受电流

 

20、25、31.5

额定峰值耐受电流

 

40、63、80

额定短路持续时间

s

4

电寿命

274(E2级)

机械寿命

 

10000(M2级)

额定单个电容器组开断电流

A

630

额定背对背电容器组开断电流

 

400

额定电缆充电开断电流

 

25

额定操作顺序

 

O-0.3s-CO-180s-CO

额定操作电压

V

按技术规范要求

 主要技术特点  1、断路器操动机构和断路器本体一体化设计,采用前后布置的形式侧装式结构;

2、断路器主导电回路部分采用三相落地式结构,灭弧室安装在绝缘筒,也可采用直接固封方式,机械强度高,耐污能力强。

3、断路器以真空作为灭弧介质,灭弧室采用杯状纵磁结构,开断能力强;

4、断路器操作机构采用弹簧储能方式,手动和电动操作互不干涉,具有自由脱扣和防跳功能;

5、断路器可装入固定式开关柜,特别适用于小型化开关柜;

6、断路器的二次接线采用接线端子排,实现与外部电气系统连接。

 采购须知(注:即简要说明采购时,需方须提供的基础数据)  1、断路器型号、名称、额定电压、额定电流、额定短路开断电流及订货数量;

2、二次原理及接线图、端子排列图(若无端子排列图按制造厂端子排编排)、额定操作电压及配置要求;

3、断路器安装方式及相间距离;

4、断路器机构形式;

5、附件及备品备件的种类和数量;

6、特殊环境条件的要求及其它特殊要求。

产品图例

 绝缘筒式 断路器本体结构图  固封式 
 绝缘筒式  断路器本体结构图  固封式
 操作机构内部结构图  绝缘筒(主回路)内部结构图
 操作机构内部结构图 绝缘筒(主回路)内部结构图


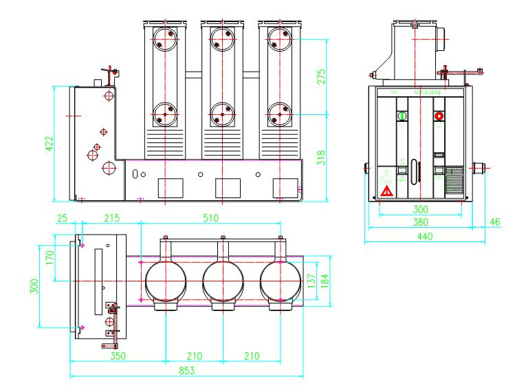
侧装式断路器外形尺寸图

侧装式断路器外形尺寸图